Skip to main content

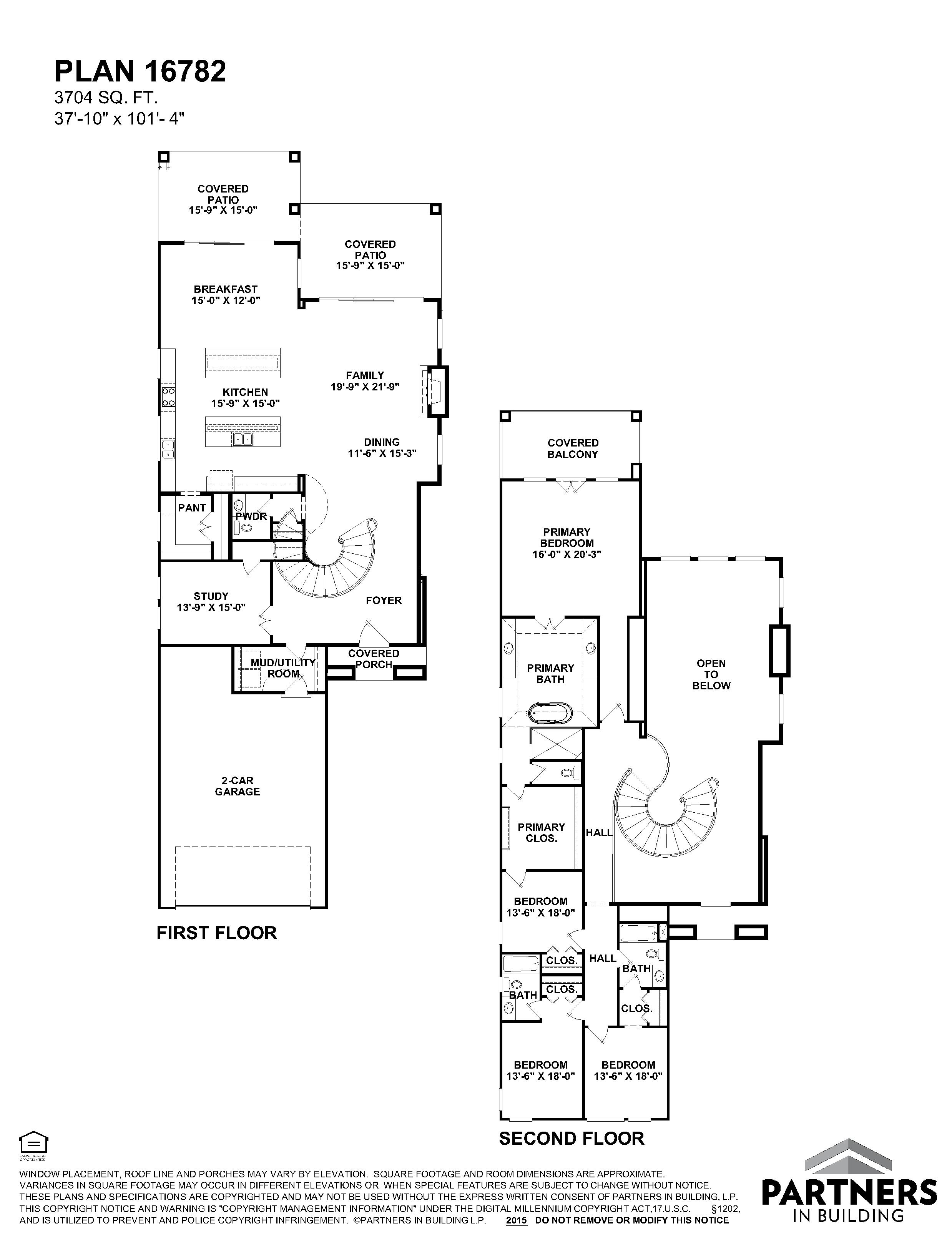
Plan 16782

Call for Pricing
2.0 Stories
3704 SF
4 Bedrooms
3 Bathrooms
1 Half Bath
2-Car Garage